Description du bien
QUARTIER DES GROS BUAUX - CAGNES SUR MER
Située dans l’un des quartiers les plus prisés de Cagnes-sur-Mer, découvrez cette villa 4 pièces au sein d’une résidence intimiste de standing avec visiophone, digicode, piscine composée de seulement trois villas contemporaines, chacune bénéficiant d’un jardin privatif et d’un accès à la piscine.
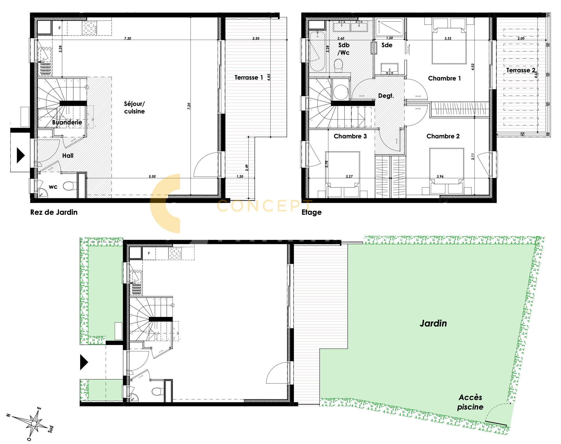
Au rez-de-chaussée, vous trouverez un séjour lumineux avec cuisine aménagée, un dégagement, un WC indépendant ainsi qu’une buanderie.
À l’étage, trois chambres dont une suite ouvrant sur une terrasse, une salle de douche, et une salle de bain avec WC complètent l’espace nuit.
À l’extérieur, une terrasse, un jardin privatif d’environ 70 m², et un accès piscine.
Vendu avec deux stationnement extérieur.
Un bien rare sur le secteur, alliant modernité, confort et sérénité.
À visiter sans tarder !
Les informations sur les risques auxquels ce bien est exposé sont disponibles sur le site Géorisques : georisques.gouv.fr
Située dans l’un des quartiers les plus prisés de Cagnes-sur-Mer, découvrez cette villa 4 pièces au sein d’une résidence intimiste de standing avec visiophone, digicode, piscine composée de seulement trois villas contemporaines, chacune bénéficiant d’un jardin privatif et d’un accès à la piscine.
Au rez-de-chaussée, vous trouverez un séjour lumineux avec cuisine aménagée, un dégagement, un WC indépendant ainsi qu’une buanderie.
À l’étage, trois chambres dont une suite ouvrant sur une terrasse, une salle de douche, et une salle de bain avec WC complètent l’espace nuit.
À l’extérieur, une terrasse, un jardin privatif d’environ 70 m², et un accès piscine.
Vendu avec deux stationnement extérieur.
Un bien rare sur le secteur, alliant modernité, confort et sérénité.
À visiter sans tarder !
Les informations sur les risques auxquels ce bien est exposé sont disponibles sur le site Géorisques : georisques.gouv.fr
Détails
Informations principales
- Pièces 4 pièces
- Surface totale 96.2 m²
- État Neuf / Rénové
- Exposition Sud
Prestations
- Type de chauffage : Air pulsé
- Moyen de chauffage : Climatisation
- Type d’eau chaude : Boiler électrique
- Vitrage : Double vitrage
- Climatisation
- Volet : Roulants électriques
Mentions légales
- Loi Carrez : 96,2 m2
- Les honoraires sont à la charge du vendeur
- Procédure(s) en cours : Non
DPE / GES
Valeurs DPE et GES non fournies
Galerie Photos
Loïc SIMEONE